T
A
L
K
S

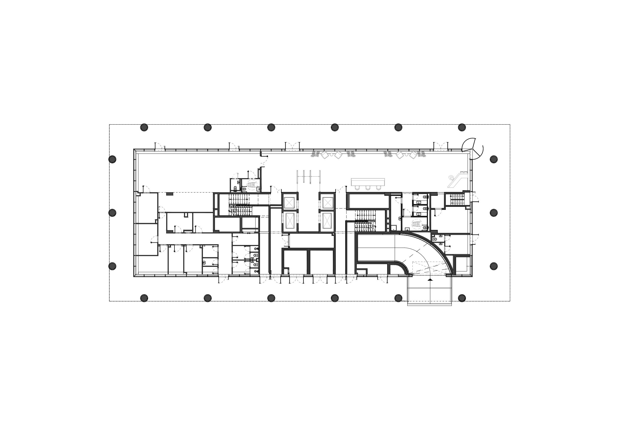
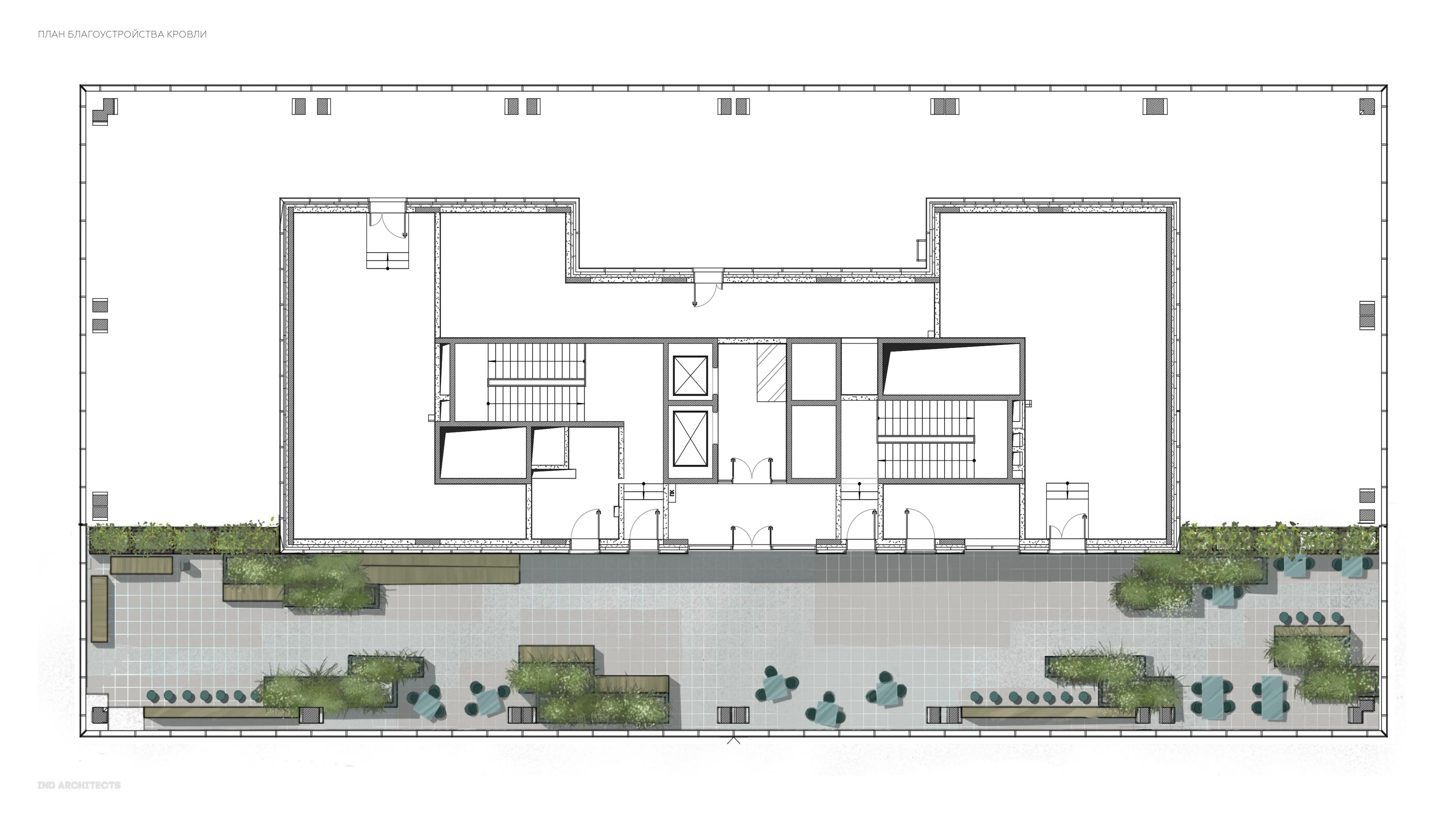
The architectural concept of the complex of public and business centers on Sviridova street is two unique buildings, which form a single harmonious, bright and modern image.

Typology
:Architecture
Office architecture
Status
:Construction
Year of design
:2023
Location
:Moscow
Square
:21449 m2
About project:
The complex borders closely with the middle-rise residential buildings and the railroad. We preserve the well-established microclimate of the area and neatly fit the volume of the future complex in the existing buildings. Bright, individual, recognizable, and self-sufficient volumes naturally blend into the fabric of the city, and become an integral part of it.
















Project team
- Roman Pinaev
- Evgeny Sushko
- Ravil Murakov
- Dmitry Khomyakov
- Maxim Chirkin
- Julia Khapkina
- Ksenia Novikova
- Timur Urusov
- Ilya Efremov
- Dmitry Annensky
- Elena Solovyova
- Tatiana Mamina
- Vitaly Homyuk
- Maxim Chirkin
- Julia Khapkina
- Ksenia Novikova
- Timur Urusov
- Dmitry Khomyakov
- Ilya Efremov
- Dmitry Annensky
- Elena Solovyova
- Tatiana Mamina
- Vitaly Homyuk
Project details
- Construction
- 2023
- Moscow
- 21449 m2