T
A
L
K
S

The premium segment residential complex on Al-Farabi Avenue in Almaty offers residents a comfortable lifestyle in an urban environment with commensurate architecture – a balance of urbanism, nature and personal space.

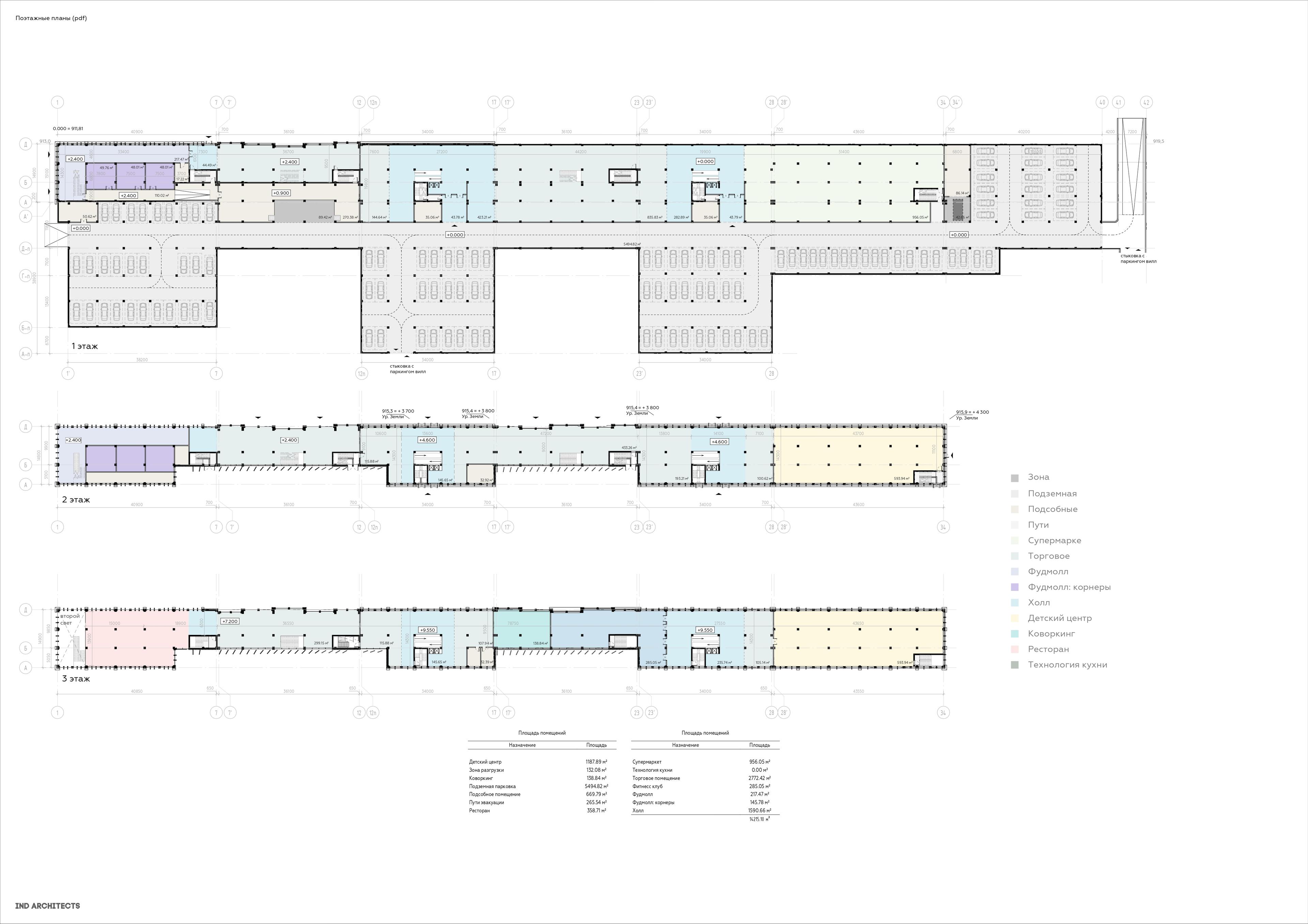
Typology
:Masterplan
Status
:Concept
Year of design
:2021
Location
:Almaty
Square
:57800 m2
About project:
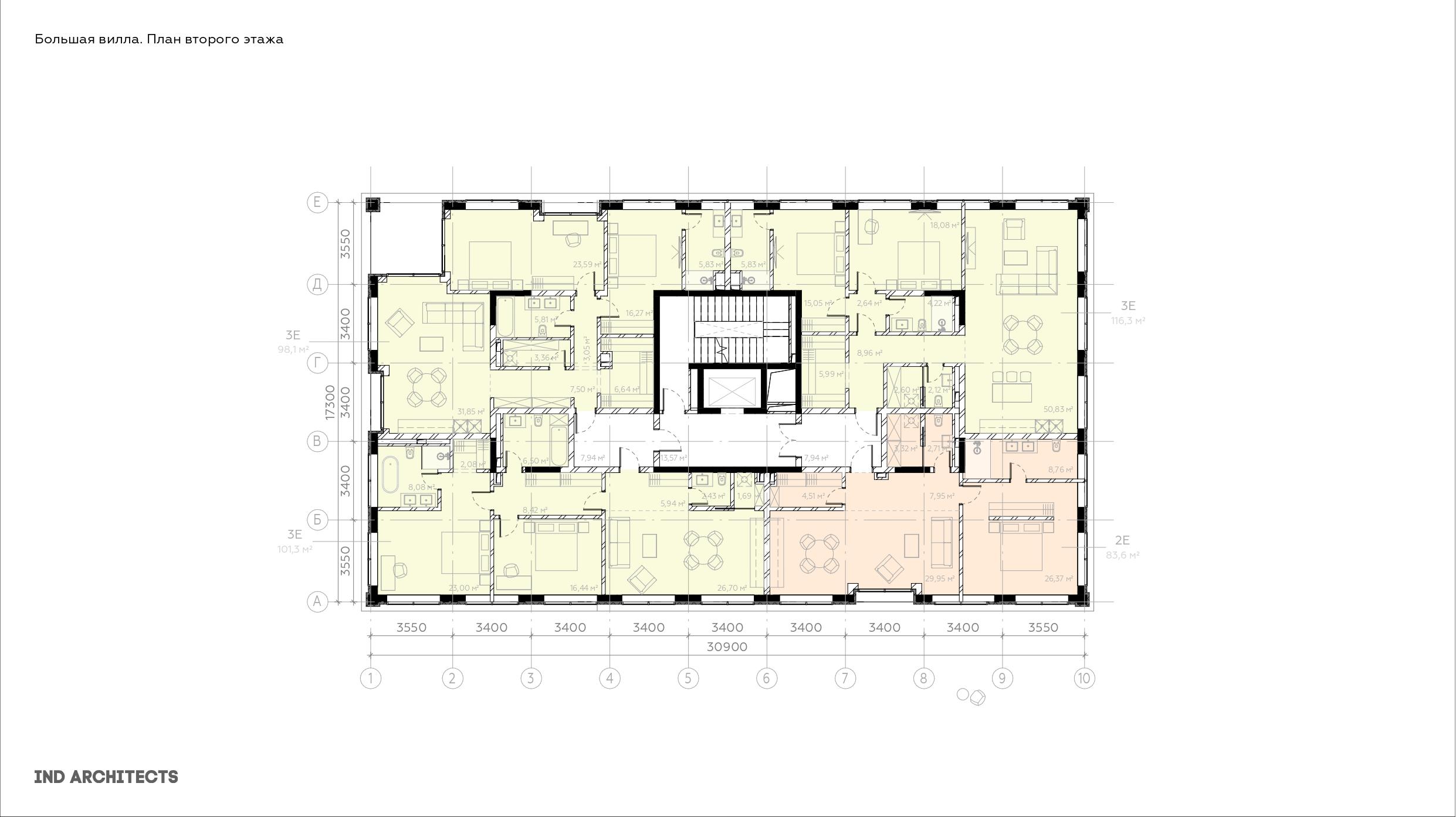
The residential complex consists of urban villas and townhouses, in a closed area the principle of a barrier-free pedestrian environment is implemented. Compact three-story urban villas form a clear grid of blocks with the private patio yards accessible only to residents.











Project team
- Ksenia Titarenko
- Dmitry Khomyakov
- Ksenia Novikova
- Dmitry Bochkarev
- Andrey Trebunskikh
- Dmitry Bochkarev
- Dmitry Khomyakov
- Ksenia Titarenko
- Ksenia Novikova
Project details
- Concept
- 2021
- Almaty
- 57800 m2