
Школа для талантливых молодых людей, цель которых продолжить обучение и получить богатый кругозор и актуальные профессии в лучших университетах страны и мира — такую задачу поставил перед нами заказчик.

Типология
:Образование и социальный объект
Статус
:Реализован
Год проектирования
:2021
Локация
:Бурабай
Площадь
:3803 м2
О проекте:
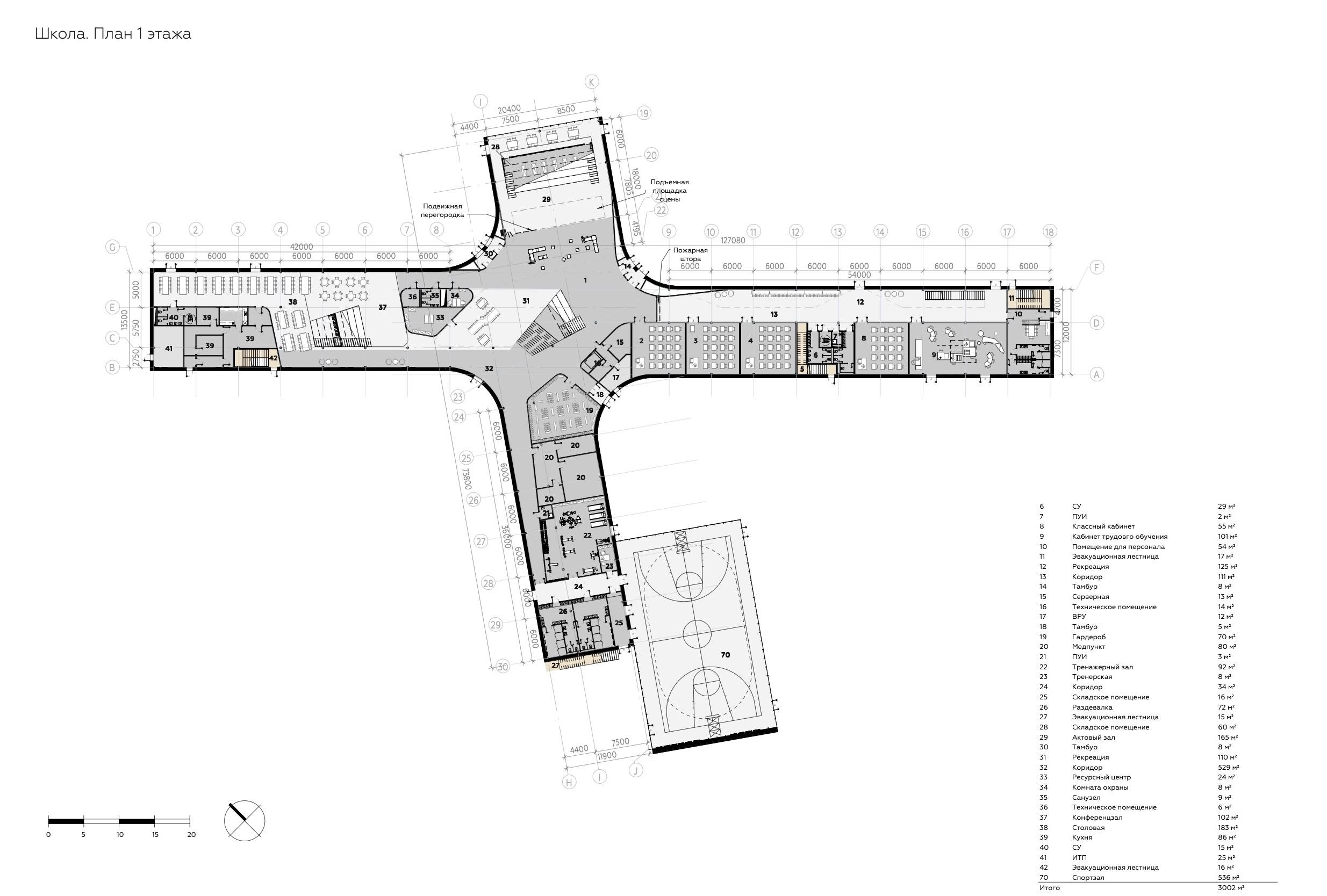
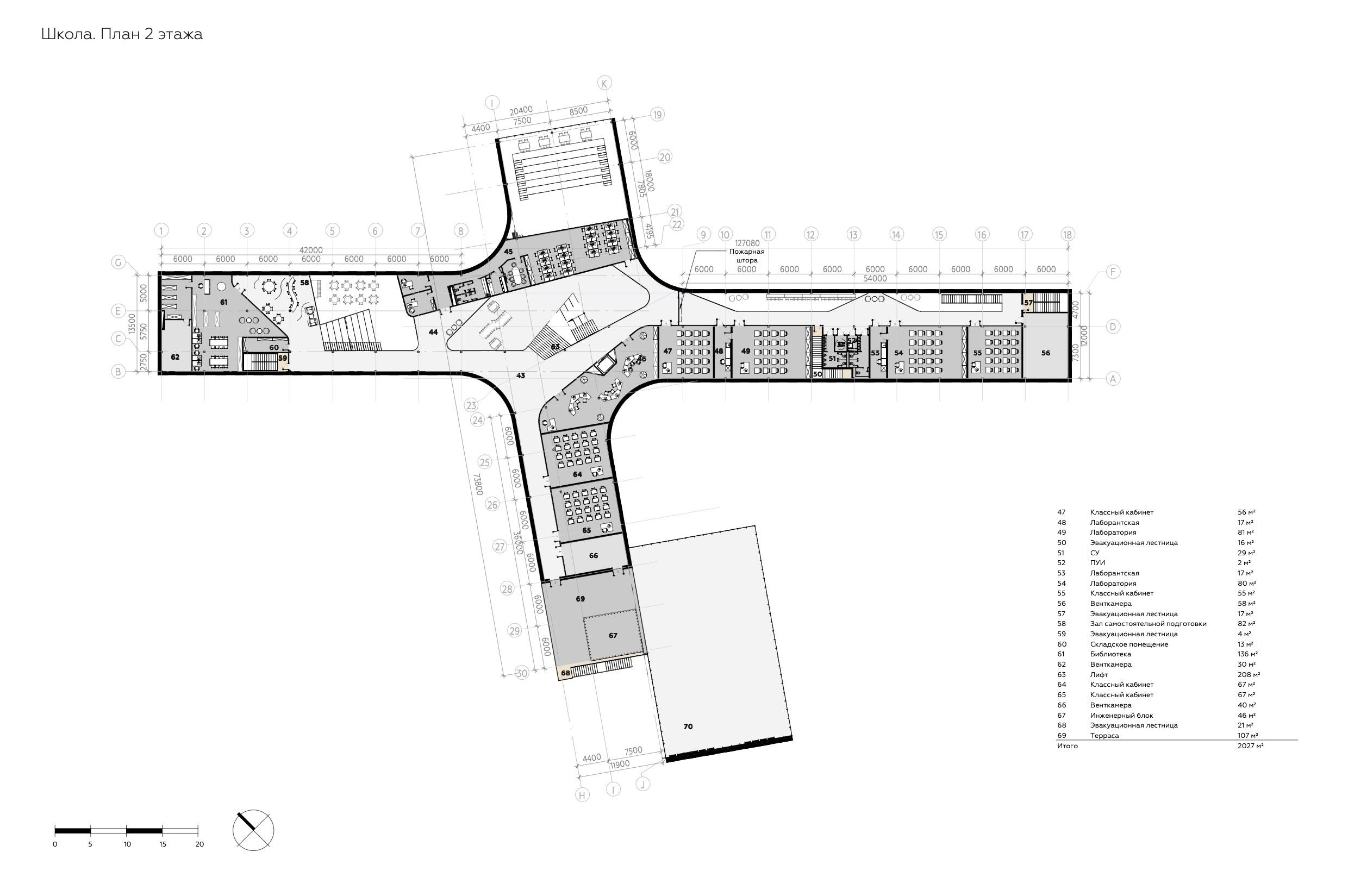
Школа расположена в трехсот километрах от Астаны, в национальном заповеднике в поселке. Обучение длится два года — 10 и 11 классы, за которые ученики со всей страны будут готовиться к поступлению в вузы. Летом здесь будет организован летний лагерь для учеников других школ, где они смогут отдохнуть у озера в окружении природы и углубить свои академические знания. Программа образования составлена таким образом, чтобы студенты могли развиваться в выбранном ими направлении; такой подход поддерживают и современные архитектурные и интерьерные решения — в школе есть пространства для изучения иностранных языков, занятий музыкой, живописью, программированием, 3D моделированием, робототехникой и другими науками.














Команда проекта
- Николай Фанеев
- Амир Идиатулин
- Ярослав Самохвалов
- Лев Щипакин
- Катерина Волобуева
- Ярослав Самохвалов
- Лев Щипакин
- Никита Дергунов
Детали проекта
- Реализован
- 2021
- Бурабай
- 3803 м2